$155,000
$159,900
3.1%For more information regarding the value of a property, please contact us for a free consultation.
4,356 Sqft Lot
SOLD DATE : 06/10/2019
Key Details
Sold Price $155,000
Property Type Vacant Land
Sub Type Residential
Listing Status Sold
Purchase Type For Sale
MLS Listing ID 72496471
Sold Date 06/10/19
Annual Tax Amount $15
Tax Year 2019
Lot Size 4,356 Sqft
Acres 0.1
Property Sub-Type Residential
Property Description
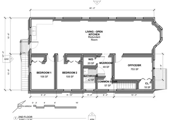
Rare opportunity for development!! Level lot with Special Permit to build a 2-family home. Permit has already been approved/granted by the City of Brockton. Sewer, water and gas at street. Please see image or attached file of site plan for reference. Don't miss out on this amazing opportunity!!
Location
State MA
County Plymouth
Zoning C2
Direction GPS
Exterior
Community Features Public Transportation, Shopping, Medical Facility, Laundromat, House of Worship, Public School, Sidewalks
Building
Lot Description Level
Sewer Public Sewer
Water At Street
Read Less Info
Want to know what your home might be worth? Contact us for a FREE valuation!

Our team is ready to help you sell your home for the highest possible price ASAP
Bought with Christina Bragel • Lamacchia Realty, Inc.

The buying and selling process is all about YOU. Whether you're a first time home buyer or a seasoned investor, I custom tailor my approach to suit YOUR needs.
Don't hesitate to reach out even for the most basic questions. I'm happy to help no matter where you are in the process.